Novecento Wide Normal

PETROL STATION

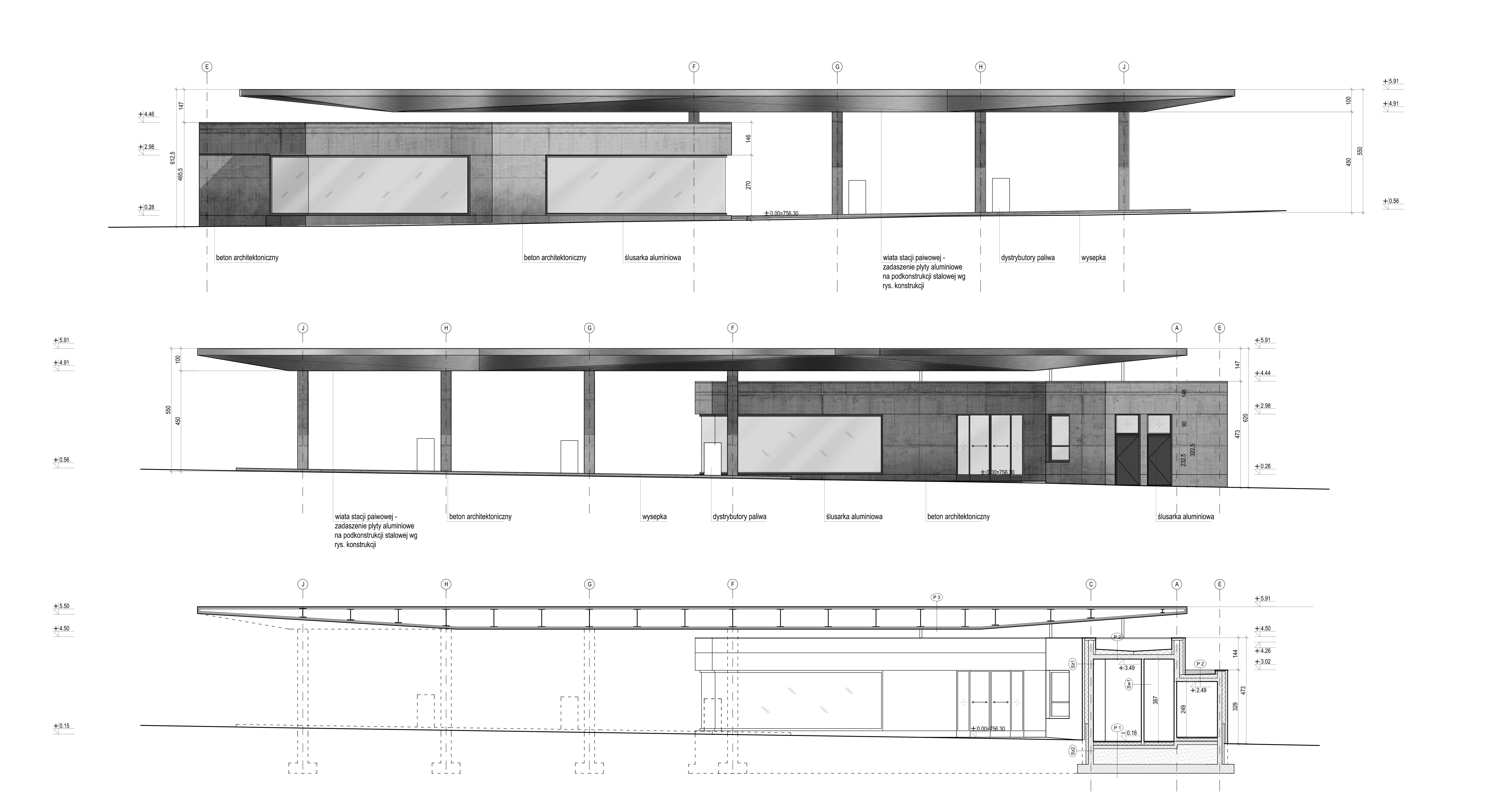
Type: Petrol station |  Location: Zakopane, Poland  |  Total area: 27 sq.m.  |  Project year: 2015  | Status: building permit

07
01
K:�1. blaCK design1. PROJEKTY1407 kukuc stacja zakopane1407
K:�1. blaCK design1. PROJEKTY1407 kukuc stacja zakopane1407
02
05

BLACKHAUS KAROL CIEPLINSKI ARCHITEKT 2016  ©  ALL RIGHTS RESERVED. ANY USE OF CONTENT OF THIS SITE NEED AN OFFICIAL AUTHORIZATION OF IT'S AUTHOR. TERMS OF USE, PRIVACY POLICY AND COOKIES.